매아더팍 주변 고층 복합시설 건축 승인/엘에이
작성자 정보
- 관리자 작성
- 작성일
컨텐츠 정보
- 147 조회
- 0 추천
- 목록
본문
| 지역 | Los Angeles | 가격 |
|---|
주택,사무실,호텔,리테일 등
이달 초 발표된 서한에서 로스앤젤레스시는 월터 J. 컴퍼니 와 메트로 가 웨스트레이크/맥아더 파크 지하철역 위에 대규모 복합 개발 시설을 건설하는 계획을 승인했습니다 .
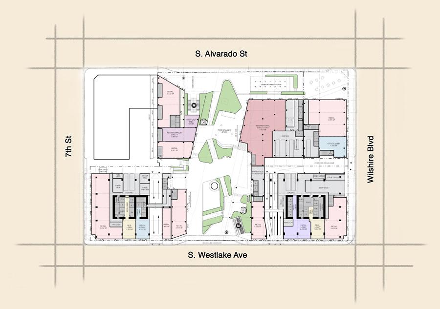
윌셔 블러바드, 알바라도 스트리트, 웨스트레이크 애비뉴, 그리고 7번가로 둘러싸인 약 15만 평방피트 규모의 부지에 들어설 센트로 웨스트레이크는 다음과 같은 두 개의 타워로 구성된 복합 단지 건설을 계획하고 있습니다.
- 스튜디오형, 침실 1개, 침실 2개짜리 주택 668채(중저소득, 극저소득, 저소득 가구를 위한 234채 포함)
- 300개의 객실을 갖춘 호텔;
- 105,000 평방피트 규모의 사무실 공간;
- 10,000 평방피트 규모의 의료 사무실;
- 56,708제곱피트의 소매 공간; 그리고
- 968대의 차량을 수용할 수 있는 주차 공간.
월터 J. 컴퍼니는 앞서 해당 프로젝트의 소매 공간 20%를 웨스트레이크에 기반을 둔 사업체에 배정할 것이라고 발표했습니다.
SOM 이 설계하는 이 프로젝트는 55층과 39층 높이의 건물들로 구성되며, 높이는 450피트에서 600피트 사이가 될 것입니다. 부지는 동서 방향으로 가로지르는 넓은 중앙 개방 공간으로 나뉘어질 예정입니다. 계획에 따르면 이 공간에는 상업 시설, 교통 허브, 지역 상인들을 위한 공간 및 행사 공간 등이 조성될 것입니다.
센트로 웨스트레이크는 월터 J. 컴퍼니가 이 지역에 고층 건물을 짓기 위해 시도한 첫 번째 프로젝트는 아닙니다. 거의 10년 전, 이 회사는 윌셔 대로를 따라 동쪽으로 한 블록 떨어진 곳에 아직 건설되지 않은 고층 건물에 대한 건축 허가를 받았습니다 .
출처:la.urbanize.city
관련자료
-
링크
댓글 0
등록된 댓글이 없습니다.







